Home
Projects
Services About Contact
Izakaya Rouge — Main Floor

Project 01

Izakaya Rouge

Type

Restaurant & Bar

Style

Japanese-Inspired

Location

Montreal

Levels

Two (Main + Mezzanine)

Materials

Red Velvet, Wood, Glass Brick, Marble

Izakaya Rouge merges the calm elegance of Japanese interior design with the energetic, social atmosphere of Montreal's nightlife and speakeasy culture. A warm material palette of wood, stone, and natural finishes creates a balanced environment that feels both refined and inviting.

The design crafts a deliberate spatial journey. Upon arrival, guests are presented with a choice — ascend to the mezzanine-level bar or continue toward the main dining area. The transition to the dining space unfolds through a curved hallway designed to subtly shift the guest's perception as they move deeper into the restaurant.

A glass brick wall along this hallway builds curiosity and anticipation, drawing visitors further into the space. Natural materials and carefully positioned lighting strike a balance between moody ambiance and genuine warmth, ensuring the experience feels sophisticated yet comfortable throughout.

Izakaya Rouge — Main Level Floor Plan
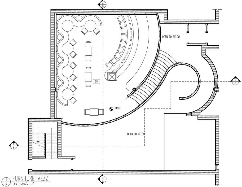
Izakaya Rouge — Mezzanine Floor Plan
Izakaya Rouge — Cross Sections
View All Projects