Home
Projects
Services About Contact
The Loft Kitchen

Project 02

The Loft

Type

Residential Interior

Style

Organic Modern

Scope

Full Interior Design

Levels

Two (Main + Mezzanine)

Materials

Travertine, Wood, Linen, Glass

Inspired by organic modern and contemporary classic design, The Loft employs a neutral and natural material palette — warm browns, soft beiges, and muted greens — to establish a calm, grounded atmosphere throughout the residence.

Materials such as wood, travertine, and linen were selected to emphasize warmth, texture, and a connection to natural elements. The design prioritizes spaciousness while maintaining an underlying sense of comfort and intimacy within each area.

Floor-to-ceiling windows bring in abundant natural light, reinforcing the openness of the loft. Light linen curtains soften and diffuse sunlight without fully blocking it, giving the occupant control over the brightness and mood of the space. Warm ambient lighting complements the natural light, creating a relaxing and inviting atmosphere during evening hours.

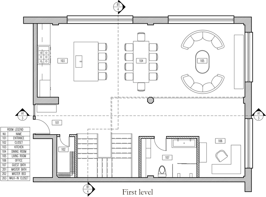
The Loft — First Level Floor Plan
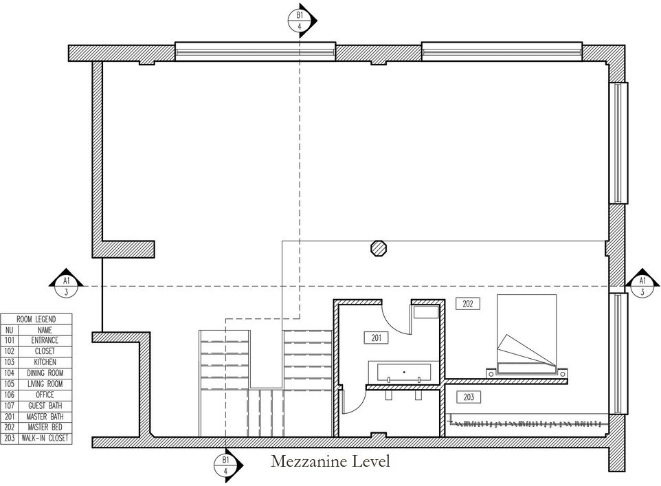
The Loft — Mezzanine Level Floor Plan
The Loft — Cross Sections A and B
View All Projects